No0026 県道に面し海望む土地(古屋付)
伊豆のシンボル大室山の麓、遠笠山道路に面し日当たり良く海を望む南向きの土地。 ・メディカルはばクリニック約700m・マックスバリュ約2900m・バス停450m
価格
500万円
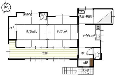
間取り
2DK
建物面積
62.85㎡
土地面積
459.00㎡
静岡県伊東市富戸(伊豆シャボテン公園温泉別荘地)
伊豆急行線「伊豆高原駅」徒歩38分
地目:山林
地勢:南向き傾斜地
引き渡し条件:現況渡し。契約不適合責任免責。
法令制限:建築基準法22条地域、宅地造成及び盛り土等規制法、自然公園法、景観法、屋外広告物規制法、県条例、市条例。
設備:東京電力・私水道・個別浄化槽。
備考:分譲地規約あり。建物付き:12,000円。(年・個人)。
取引態様:媒介
手数料:330,000円(税込み)
物件問合せ
地勢:南向き傾斜地
引き渡し条件:現況渡し。契約不適合責任免責。
法令制限:建築基準法22条地域、宅地造成及び盛り土等規制法、自然公園法、景観法、屋外広告物規制法、県条例、市条例。
設備:東京電力・私水道・個別浄化槽。
備考:分譲地規約あり。建物付き:12,000円。(年・個人)。
取引態様:媒介
手数料:330,000円(税込み)
物件概要
物件名
No0026 県道に面し海望む土地(古屋付)
所在地
静岡県伊東市富戸(伊豆シャボテン公園温泉別荘地)
価格
500万円
交通
伊豆急行線「伊豆高原駅」徒歩38分
築年月
1974年3月
間取り
2DK
土地面積
459.00㎡
建物面積
62.85㎡
階建
平屋建
建物構造
木造
向き
南向き
面積計測方式
公簿
住宅性能
販売戸数 / 総戸数
建ぺい率 / 容積率
20/40
接道状況
南側公道
セットバック
道路より20m
私道負担
なし
再建築
可
現況 / 引渡時期
空家/相談
お部屋の特徴
バス・トイレ
キッチン
セキュリティ
設備
東京電力、私水道、浄化槽
その他
用途地域
無指定
都市計画
非線引き
駐車場
1台
備考
温泉権利付き(名義変更料220,000円)。
水道名義変更料33,000円
古屋付土地の売買契約。
水道名義変更料33,000円
古屋付土地の売買契約。
他にも多数の物件を取り揃えております 。お気軽にお問い合わせください。







